会社案内
すなはらの家づくり
暑さ・寒さから家を守る断熱材
建築事例
イベント情報
よくあるご質問
土地情報
無料相談
お問い合わせ
資料請求
ホーム
会社案内
すなはらの家づくり
建築事例
イベント情報
よくあるご質問
お問い合わせ
News
お知らせ
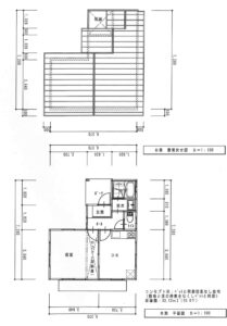
木村さんB案